CONSTRUCTION D'UN VILLAGE SOSVE
BESSE-SUR-ISSOLE (83)
MOA SOSVE
MOE B.Constantin (m) en collaboration avec STUDIO AQUI
COÛT 4,8 M€ HT
SURFACE 3025 m²
ÉTAT Livré en 2020
CONSTRUCTION D'UN VILLAGE SOSVE
BESSE-SUR-ISSOLE (83)
MOA SOSVE
MOE B.Constantin (m) en collaboration avec STUDIO AQUI
COÛT 4,8 M€ HT
SURFACE 3025 m²
ÉTAT Livré en 2020
besse_11_test.jpg
img_5957.jpg
img_32810.jpg
besse_10_test.jpg
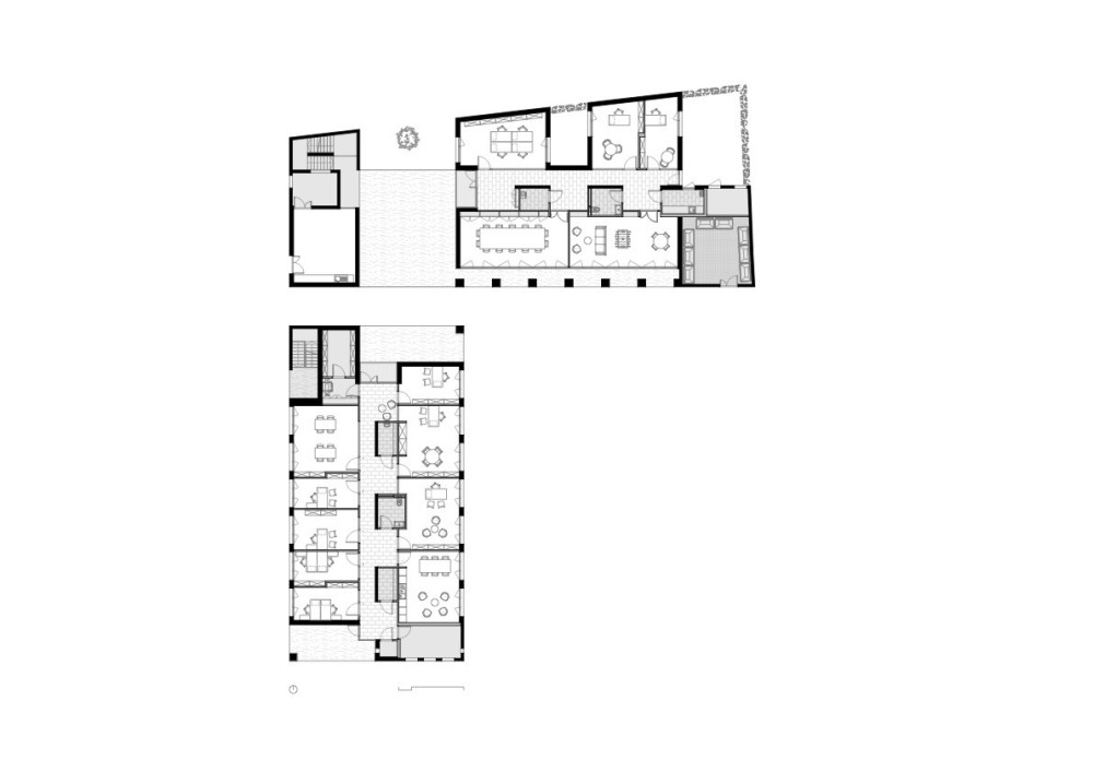
19.02_com_plan-rdc-m.jpg
plan RDC maison
19.02_com_plan-rdc-mc.jpg
plan RDC équipement
CONSTRUCTION D'UN VILLAGE SOSVE
BESSE-SUR-ISSOLE (83)
MOA SOSVE
MOE B.Constantin (m) en collaboration avec STUDIO AQUI
COÛT 4,8 M€ HT
SURFACE 3025 m²
ÉTAT Livré en 2020
besse_11_test.jpg
img_5957.jpg
img_32810.jpg
besse_10_test.jpg
19.02_com_plan-rdc-m.jpg
plan RDC maison
19.02_com_plan-rdc-mc.jpg
plan RDC équipement